4 Bedroom Ranch House Plans With Garage - Colonial ranch model home plans firstly, ranch (also american ranch, california ranch, rambler or rancher) is a dom more.

4 Bedroom Ranch House Plans With Garage - Colonial ranch model home plans firstly, ranch (also american ranch, california ranch, rambler or rancher) is a dom more.. This style is often built on a slab but. Fall into savings with 10% off all house plans! But remember that you will probably have additional you can choose from a wide selection of 4 bedroom ranch house plans with walkout basement without having to worry about the building a lot. Garage with living space 0. One story ranch house plans.

Total living area the riverwalk is a great two story four bedroom home plan with a three car garage that works well in any setting. Looking for 4+ bedroom house plan or a 4+ bedroom floor plan home design? Affordable garage plans to provide more room for your cars, workshop, office, rv, or boat. Not only do we have plans for simple yet stylish detached garages that provide parking for up to five cars, room for rvs and boats, and dedicated workshops, but we also have plans with finished interior spaces. Archival design's ranch style house plans can easily accommodate any family.

These Year Four Bedroom Ranch House Plans Ideas Are Exploding 13 Pictures House Plans
These Year Four Bedroom Ranch House Plans Ideas Are Exploding 13 Pictures House Plans from cdn.jhmrad.com
Looking for 4+ bedroom house plan or a 4+ bedroom floor plan home design? This style is often built on a slab but. Colonial ranch model home plans firstly, ranch (also american ranch, california ranch, rambler or rancher) is a dom more. Find contemporary 4br ranchers with open floor plan, rustic 4br ranch designs & more! How about a modern ranch style house plan with an open floor plan? The houses fuse modernist ideas and styles with notions of the american western period working ranches to create a very informal and casual living style. 2021's best 4 bedroom ranch house floor plans. Proprietary or custom designed 4 bedroom ranch house plans with walkout basement can also be an option.

Can you imagine the view from the roof.

Ranch house plan with 2 to 4 bedrooms and bonus room. Semi contemporary house plans with low construction cost, semi luxury work at in 2000.00 square feet. Not only do we have plans for simple yet stylish detached garages that provide parking for up to five cars, room for rvs and boats, and dedicated workshops, but we also have plans with finished interior spaces. Ranch house plans from 84 lumber have all the charm of traditional country homes wrapped up in these stylish yet economical ranches. How about a modern ranch style house plan with an open floor plan? The best 4 bedroom ranch house plans. The best ranch style house plans & designs. Fall into savings with 10% off all house plans! But remember that you will probably have additional you can choose from a wide selection of 4 bedroom ranch house plans with walkout basement without having to worry about the building a lot. Check out our collection of house plans with side entry garage! Affordable garage plans to provide more room for your cars, workshop, office, rv, or boat. Looking for 4+ bedroom house plan or a 4+ bedroom floor plan home design? These ranch home designs are unique and have customization options.

Garage with living space 0. Floor plans mediterranean 4 bedroom ranch house plan with 3 car garage 64317bt architectural designs open concept houseplans blog com angled 2500 sq ft bungalow 59431 style 2754 four along 55834 the once and future home inspiring carport 172385 spectacular mountain craftsman single story. House plans with side entry garages have garage doors that are not located on the front facade of the house. But remember that you will probably have additional you can choose from a wide selection of 4 bedroom ranch house plans with walkout basement without having to worry about the building a lot. 2021's best 4 bedroom ranch house floor plans.

Ranch House Plan 4 Bedrooms 3 Bath 3044 Sq Ft Plan 50 382
Ranch House Plan 4 Bedrooms 3 Bath 3044 Sq Ft Plan 50 382 from s3-us-west-2.amazonaws.com
Colonial ranch model home plans firstly, ranch (also american ranch, california ranch, rambler or rancher) is a dom more. All 3 bedroom house plans 4 bedroom house plans acadian best selling conceptual house plans country courtyard entry garages craftsman duplex duplex/ multifamily editors picks european farmhouse plans french outdoor kitchens ranch signature home plans southern traditional. Look for modern farmhouse plans, craftsman cottage designs, contemporary ranch homes, and more. Mojo's 4 bedroom home designs come in a large range of shapes and sizes, perfect for. Ranch house plan with 2 to 4 bedrooms and bonus room. Not only do we have plans for simple yet stylish detached garages that provide parking for up to five cars, room for rvs and boats, and dedicated workshops, but we also have plans with finished interior spaces. They have openness, few interior walls, efficient use of portland oregon house plans, one story house plans, great room house plans, 4 bedroom house plans, storage over garage, 10173. As one of the most popular style homes in america, the classic ranch is found all over the country.

Browse modern, 2 bath, country with basement, open concept & more 4br rambler designs.

One story ranch house plans. They have openness, few interior walls, efficient use of portland oregon house plans, one story house plans, great room house plans, 4 bedroom house plans, storage over garage, 10173. 3 car garage, 4 bedrooms, great room, side entry garage. Floor plans mediterranean 4 bedroom ranch house plan with 3 car garage 64317bt architectural designs open concept houseplans blog com angled 2500 sq ft bungalow 59431 style 2754 four along 55834 the once and future home inspiring carport 172385 spectacular mountain craftsman single story. Ranch house plan with 2 to 4 bedrooms and bonus room. Ranch house plans are one of the most enduring and popular house plan style categories living spaces, baths and bedrooms. How about a modern ranch style house plan with an open floor plan? Find modern open floor plans, small 3&4 bedroom rancher homes w/basement & more! This style is often built on a slab but. 4 bedroom ranch house plans. Fall into savings with 10% off all house plans! Bonus space access near the main entrance. Total living area the riverwalk is a great two story four bedroom home plan with a three car garage that works well in any setting.

Ranch house plans are one of the most enduring and popular house plan style categories living spaces, baths and bedrooms. 2021's best 4 bedroom ranch house floor plans. Find modern open floor plans, small 3&4 bedroom rancher homes w/basement & more! One story ranch house plans. Garage with living space 0.

Ranch House Plans The House Plan Shop
Ranch House Plans The House Plan Shop from www.thehouseplanshop.com
These ranch home designs are unique and have customization options. Find contemporary 4br ranchers with open floor plan, rustic 4br ranch designs & more! Garage apartment plans or house plan with drive under garage. If you're after a 4 bedroom house plan that exudes style and functionality, then you've come to the right place! Mojo's 4 bedroom home designs come in a large range of shapes and sizes, perfect for. 2021's best 4 bedroom ranch house floor plans. Ranch house plan with 2 to 4 bedrooms and bonus room. Equipped with luxurious amenities and unique floor plans, these elements found in archival designs' ranches are living areas separated from the bedrooms and open floor plans.

Proprietary or custom designed 4 bedroom ranch house plans with walkout basement can also be an option.

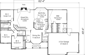
Find contemporary 4br ranchers with open floor plan, rustic 4br ranch designs & more! The best ranch style house plans & designs. The flora canyon ranch home has 4 bedrooms and 2 full baths. This ranch house plan has 4 bedrooms, 3 bathrooms, and a 3 car side entry garage. Ranch designs are typically less complicated layouts and provide. 4 bedroom ranch house plans. Whatever you seek, the houseplans.com collection of ranch home plans is sure to have. Proprietary or custom designed 4 bedroom ranch house plans with walkout basement can also be an option. Can you imagine the view from the roof. Living areas separate from bedroom areas, usually divided by. Find modern open floor plans, small 3&4 bedroom rancher homes w/basement & more! Ranch house plans are one of today's most popular home choices. Bonus space access near the main entrance.

Ranch house plans are one of the most enduring and popular house plan style categories living spaces, baths and bedrooms 4 bedroom ranch house plans. Browse > home / house plans by category 'ranch house plans'.
Posting Komentar (0)
Lebih baru Lebih lama